Дом по адресу Краснодар, , за 8500000 р.

Адрес Краснодар
Цена 8 500 000 р.
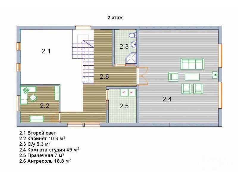
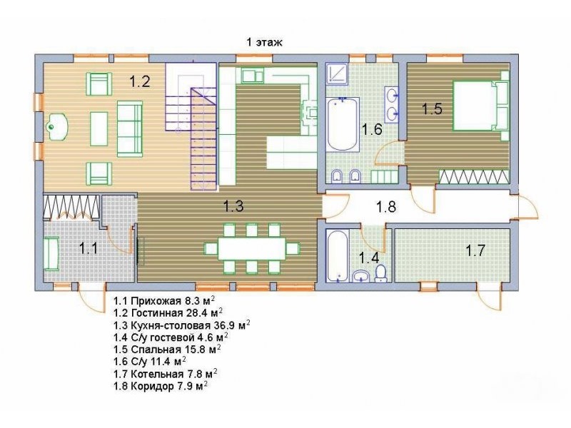
Площадь дома 215 м2, участка 6 м2
2-этажный дом 215 кв.м. на участке 6 сот., в Краснодаре, Западный р-н, мкр. им. Вавилова. Возле реки Кубань, ореховая роща по берегу, комаров нет, рыбалка, очень спокойный район. Широкие улицы. Без отделки. Стены 50 см: ВК блок + кирпич, двойная норма тепла по стенам и крыше. Качественная стройка из хороших материалов. Строили для себя. Выполнены электроввод, ввод воды, канализация - евросептик 15 м. куб. Водопровод центральный (артезианская скважина 270 м). Газ. Установлены: спутниковое телевидение, высокоскоростной интернет. + отдельно стоящий летний домик с верандой ( 30 кв. м.) и кондиционером, можно переоборудовать в баню.
Объявление № 8865241
Дата подачи:
21 июля 2017 г. 23:44
Дата обновления:
21 июля 2017 г. 23:44
Просмотров 239 Хотите продать быстрее?

Продавец
Иван
email: info@key-house.net
Показать номер телефона
Пожаловаться
Комментарии:
Добавить